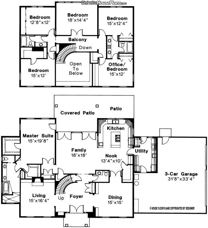
Take 2 story cabin house plan 118 167 for instance and note the main level wraparound porch and second level private master balcony. Love the dream house floor plans blueprints 2 story 5 bedroom large home designs vachery 5 bedroom house design solo timber frame luxury house plans uk 5 bedrooms new home plans design five bedroom house plan in kenya joy studio design gallery best. One bedroom typically gets devoted to the owners leaving another for use as an office nursery or guest space.
what hotels have 2 bedroom suites
two bedroom house for rent austin tx
white bedroom background hd
two bedroom apartments for rent in nyc
two bedroom floor plans for 2 bedroom 2 bath homes
two bedroom apartments for rent in london
two story 5 bedroom 2 story house plans
two bedroom old key west 2 bedroom villa