Country Style House Plan 3 Beds 2 Baths 1492 Sq Ft Plan 406 132

Country Style House Plan 3 Beds 2 Baths 1492 Sq Ft Plan 406 132

653788 One Story 3 Bedroom 2 Bath French Traditional Style

653788 One Story 3 Bedroom 2 Bath French Traditional Style

Ranch Style House Plan 3 Beds 2 Baths 1796 Sq Ft Plan 70 1243

Ranch Style House Plan 3 Beds 2 Baths 1796 Sq Ft Plan 70 1243

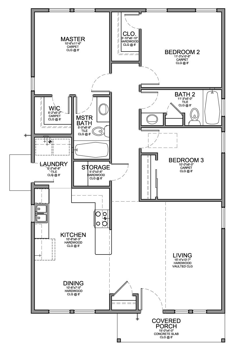
Floor Plan For A Small House 1 150 Sf With 3 Bedrooms And 2 Baths

Floor Plan For A Small House 1 150 Sf With 3 Bedrooms And 2 Baths

Source : pinterest.com