2 Bedroom 2 Bath Barndominium Floor Plans With Shop

2 Bedroom 2 Bath Barndominium Floor Plan For 30 Foot Wide Building

2 Bedroom 2 Bath Barndominium Floor Plan For 30 Foot Wide Building

Barndominium Floor Plans With Shop 2 Bedroom Design Ideas

Barndominium Floor Plans With Shop 2 Bedroom Design Ideas

2 Bedroom 2 Bath Barndominium Floor Plan For 30 Foot Wide Building

2 Bedroom 2 Bath Barndominium Floor Plan For 30 Foot Wide Building

Barndominium Floor Plans Pole Barn House Plans And Metal Barn

Barndominium Floor Plans Pole Barn House Plans And Metal Barn

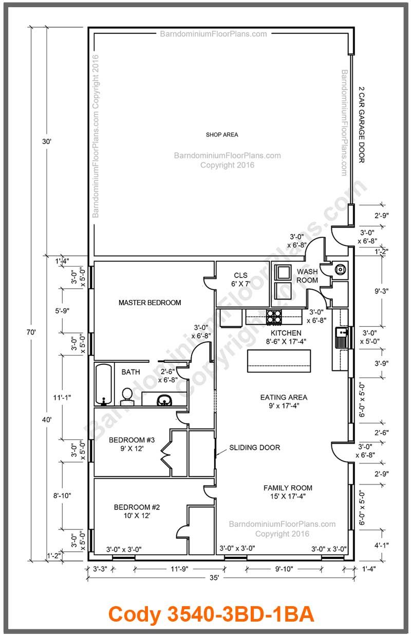
The Cody Features An Open Concept Great Room That Would Be Ideal

The Cody Features An Open Concept Great Room That Would Be Ideal

17 Coolest Barndominium Floor Plan With Pool That Turn Your Home

17 Coolest Barndominium Floor Plan With Pool That Turn Your Home

17 Coolest Barndominium Floor Plan With Pool That Turn Your Home

This floor plan is a masterpiece with all the essentials that make a complete 2 bedroom plan.

2 bedroom 2 bath barndominium floor plans with shop. 2 bed 1 bath 40 x20 1200 sq. 40 barndominium floor plans 800 sq. Barndominium floor plans various styles of houses are available to meet your needs well. 2 bedroom barndominium example 1.

Build a beautiful barndominium based on this design. It has a 200 sq. As you can see that there are two bedrooms one bathroom one kitchen one dining room one living room and a small balcony. 2 bedrooms and 2 bathrooms barndominium floor plans source.

Lucan likes it a lot. View our 1 2 and 3 bedroom barn home plans and layouts. Ft of living space has 3 bedrooms and 3 bathrooms plus an office and a loft. The master suite has his and hers closets and a 5 piece bath.

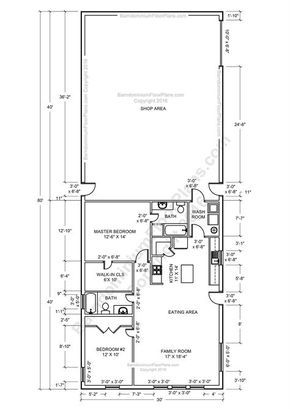
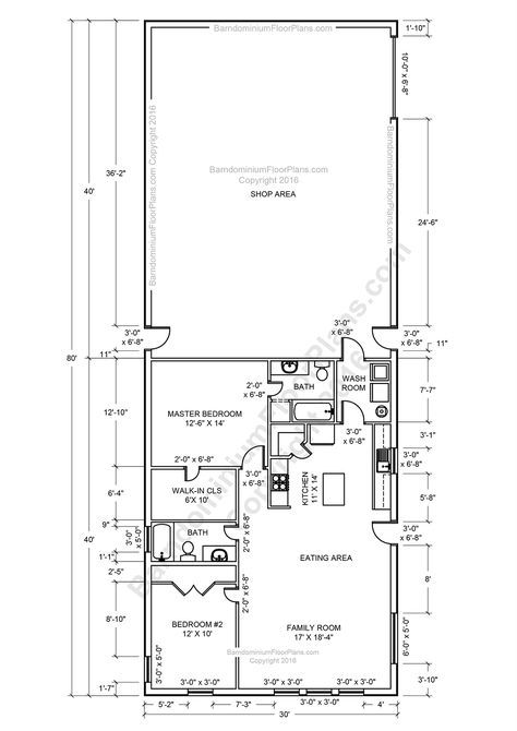
For a family that needs a lot of space two bedroom barndominium floor plans with shop is a great choice and are cost effective as well. 2 bed 2 bath 35 x 40 1400 sq ft. You can have it too. This is one of 2 bedroom barndominium floor plans.

It is comfortable spacious and provides ultimate privacy by providing a bathroom in each bedroom. This barndominium floor plan is based on a 50 foot wide building with no center supports. My uncle john makes this design for his son lucas. Customize the shop area by choosing how long it is and the number of doors along with the sizes.

One of houses that many people are dying for is barndominiums. This is a 4 bedroom 2 and a half bath barndominium floor plan based on a 50 wide building. 2 bed 2 bath 40 x30. The shop shown is 30 x 50.

This barndominium floor plan comes with two bedrooms so your friends or your family can stay overnight at your comfortable barndominium. The name denotes that it is a fusion of a barn and a condominium. 3 bedrooms and 2 bathrooms barndominium floor plans. To turn this barn into a safe haven for you and your family check out these 10 amazing barndominium floor plans.

Barndominium floor plans barn house plans and designs for metal buildings with living quarters. This barndominium is suitable for a little family consisting parents and a kid. This section is specifically for the best 2 bedroom barndominium floor plans and we are going to be looking at 6 of the best floor plans and a good description to match. For those who need more space three bedroom barndominium floor plans with shop is also a good plan to follow.

The beulah plan is a 2 story barndominium whith 3 000 sq.

Source : pinterest.com