2 Bedroom 1 Bath Barndominium Floor Plans

Barndominium Floor Plan 2 Bedroom 1 Bathroom 35x30 Barndominium

Barndominium Floor Plan 2 Bedroom 1 Bathroom 35x30 Barndominium

Barndominium Floor Plans With Shop 2 Bedroom Design Ideas

Barndominium Floor Plans With Shop 2 Bedroom Design Ideas

Brandominium Floor Plan 2 Bed 1 Bath 30x30 900 Sq Ft

Brandominium Floor Plan 2 Bed 1 Bath 30x30 900 Sq Ft

Best Metal Barndominium Floor Plans With Pictures Barn Metalhome

Best Metal Barndominium Floor Plans With Pictures Barn Metalhome

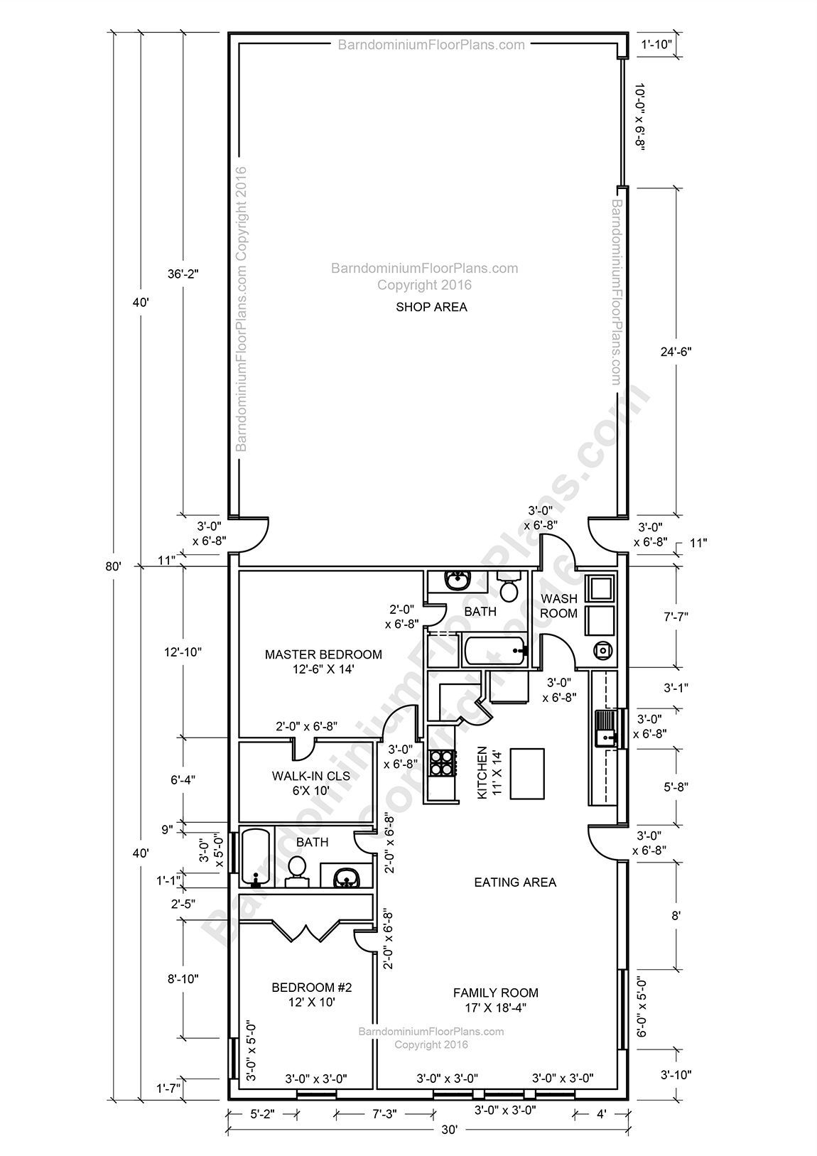
Barndominium Floor Plan 2 Bedroom 2 Bathroom 30x40

Barndominium Floor Plan 2 Bedroom 2 Bathroom 30x40

2 Bedroom 2 Bath Barndominium Floor Plan For 30 Foot Wide Building

2 Bedroom 2 Bath Barndominium Floor Plan For 30 Foot Wide Building

2 Bedroom 2 Bath Barndominium Floor Plan For 30 Foot Wide Building

3 bedroom barndominium floor plans with shop example 2 if you really like the idea of a shop but want a less cramped living space here is a more open option.

2 bedroom 1 bath barndominium floor plans. Plans like this are often used for a living area while waiting to build a larger home on the homestead. This type of barndominium floor plan is suitable for you who want to stay at a barndominium with several friends of with your family members. This section is specifically for the best 2 bedroom barndominium floor plans and we are going to be looking at 6 of the best floor plans and a good description to match. 2 bed 2 bath 35 x 40 1400 sq ft.

The master suite has his and hers closets and a 5 piece bath. This is a much friendly barndominium since it has 2 bedrooms. 2 bedrooms and 1 bathroom barndominium floor plans. 2 bed 2 bath 40 x30.

This is a 3 bedroom 2 bath barndominium floor plan for a 35 x 85 building with a 35 x 35 shop and 35 x 50 living area. Barndominium floor plans 2 bed 1 bath 30 30. Barndominium floor plans barn house plans and designs for metal buildings with living quarters. 2 bed 1 bath 40 x20 1200 sq.

2 bed 2 bath 30 x40 barndominium floor plans 2 bed 2 bath 40 x 30 1200 sq ft. It has a 200 sq. 40 barndominium floor plans 800 sq. One of houses that many people are dying for is barndominiums.

View our 1 2 and 3 bedroom barn home plans and layouts. 2 bedroom barndominium example 1. This floor plan is a masterpiece with all the essentials that make a complete 2 bedroom plan. It is not a huge barndominium but it does have all the things that you need to dwell in it.

To turn this barn into a safe haven for you and your family check out these 10 amazing barndominium floor plans. The beulah plan is a 2 story barndominium whith 3 000 sq. Now you can invite your friend orparents to come over for dinner and perhaps sleep over. Best 2 bedroom barndominium floor plans.

The name denotes that it is a fusion of a barn and a condominium. This is a 1 bedroom 1 bath barndominium floor plan for 35 foot wide building. This is a much pleasant barndominium because it has 2 bed rooms. This one bathroom layout still features three bedrooms but they are mostly kept separate from the main family room.

Currently you can invite your friend orparents to come over for dinner and also possibly rest over. Ft of living space has 3 bedrooms and 3 bathrooms plus an office and a loft.

Source : pinterest.com